Konzerthaus Liebfrauen
Wernigerode | 2017-2022
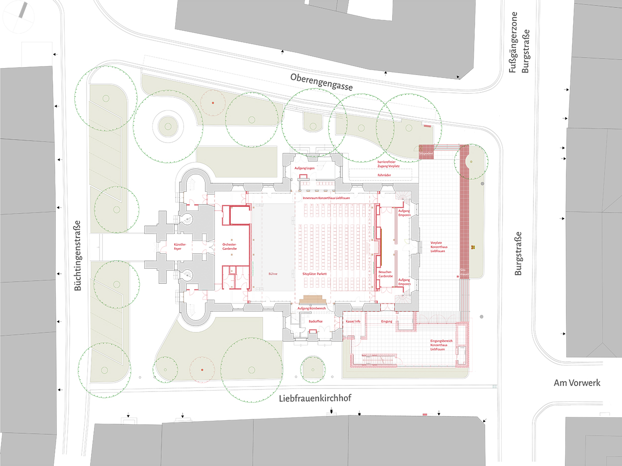
Die liturgisch untergenutzte Liebfrauenkirche in der Wernigeröder Altstadt bietet durch ihren stützenfreien barocken Kirchraum und dessen akustisch vorteilhaften Proportionen ideale Voraussetzungen für die Nutzung als Konzertsaal. Im Rahmen der EFRE-Kulturförderung ist hier ein beispielhaftes Gemeinschaftsprojekt zur Erhaltung eines Kirchgebäudes entstanden.
Der neue Konzertsaal definiert sich durch einen raumbildenden Einbau aus Podesten, der sich zwischen die bestehenden Emporen schiebt. Als abstraktes Volumen schafft er eine konzentrierte Bühnensituation innerhalb des vielgestaltigen barocken Innenraums. Die Sauer-Orgel wurde in einer spektakulären Maßnahme aus akustischen Gründen abgesenkt.
Ein neuer Anbau beherbergt das Foyer, Nebenräume und den Zugang zum Saal. Nach dem Prinzip "So wenig wie nötig, so viel wie möglich" sind hier Funktion, Technik mit architektonischer Ästhetik verwoben und machen aus der ehemaligen Kirche nun einen neuen Konzertsaal für bis zu 500 Besuchende.
Am 03. März 2022 wurde das Konzerthaus Liebfrauen nach langen Monaten der Pandemie feierlich eröffnet. Weitere Informationen finden Sie unter: Konzerthaus Liebfrauen


















